Calvary Assembly of God Wants to Allow 1,100 Hotel, Multi-Family, Assisted Living and Independent Living Units on it's Property


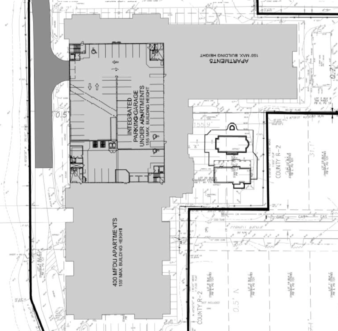
Calvary Assembly of God of Orlando, Inc (Website) submitted a PD amendment to accommodate future development on their property at 1199 Clay St. (MAP) for the following uses: 
  1. multi-family (400 units)
  2. hotel (up to 250 rooms)
  3. senior assisted living (200 units)
  4. independent senior living (250 units)