We told you in 2016 that Calvary Assembly submitted a PD amendment to accommodate future development on their property at 1199 Clay St. (MAP) for multi-family, hotel, senior assisted living and independent senior living.
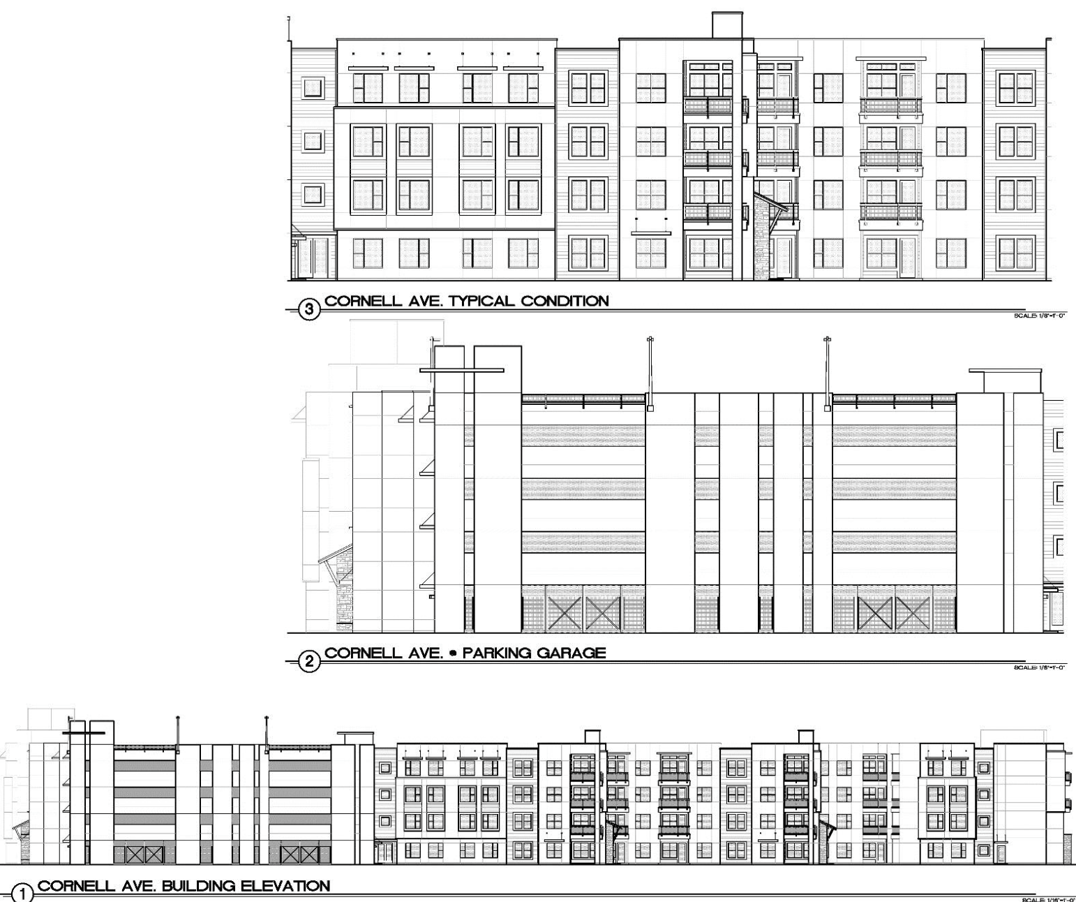
Calvary Assembly is now requesting the City abandon a 100 ft. long portion of Cornell Ave. located within the existing Calvary Assembly of God property. This development consists of 5.93 acres within project areas 3 and 4 of the Calvary Church parking area. Improvements will consist of a 310-unit multifamily apartment complex called Alexan at North End with an associated parking garage and pool/courtyard area.).
The Future Land Use Classification is Public Recreational Institutional and the Zoning District is going from Public Benefit Use to Planned Development.
The Future Land Use Classification is Public Recreational Institutional and the Zoning District is going from Public Benefit Use to Planned Development.





